Литмир - Электронная Библиотека
Содержание  
A
A

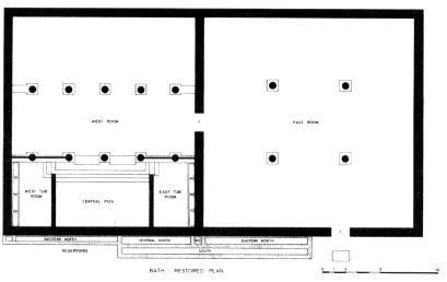
Бани разделены на два помещения одинаковой ширины. Вход в бани осуществлялся через восточную комнату площадью около 20 кв. м. Четыре внутренние колонны в этой комнате образуют квадрат – базы этих колонн сохранились лишь частично, поскольку при обработке земли в раннехристианские времена земля вскапывалась на глубину ниже уровня пола сооружения. Вторая комната была несколько больше и разделена на три нефа двумя рядами колонн. Базы колонн сохранились лишь частично, поскольку река не раз заливала это помещение.

Древний Пелопоннес - _350.jpg

Реконструкция плана бань

Южная часть помещения была отделена парапетами высотой по грудь, построенными между колоннами (сохранилась дорическая капитель от этой колоннады). В эту часть бань вела лестница – в купальные камеры и бассейн. Центральный бассейн был отделен от небольших сухих помещений стенками на высоту заполнения водой. Каждое из боковых помещений (купальных камер) было снабжено четырьмя каменными умывальниками, вода в которые подводилась по каналам через стены и отводилась отверстия в полу.

Древний Пелопоннес - _351.jpg

Бани надежно датируются последней третью 4 в. до н. э. и являются одними из самых ранних бань в Греческом мире.

Героон

Героон, обнаруженный к юго-западу от храма Зевса и к западу от бань, имел пентагональную форму. Ритуальный характер здания подтвержден захоронением с каменной крышкой, где обнаружилась зола от костей жертвенных животных и множество артефактов.

Раскопки Героона были сильно затруднены разрушениями, которые произошли в раннехристианский период при проведении сельскохозяйственных работ. Тем не менее, были выявлены периоды существования здания во времена ранней архаики, поздней архаики и раннего эллинизма. Самые ранние фрагменты Героона относятся к 6 в. до н.э. началу панэллинских игр в Немее. Но Героон к началу игр уже существовал несколько десятилетий.

Павсаний представил Героон как священный участок, огражденный каменным забором, в пределах которого размещалась гробница. Археология подтвердила сходность конструкции Героона с другими подобными участками, прославляющими погибших героев и описанными Пасанием. Но, в отличие от Пелопиона в Олимпии, Героон Офельта лежит на периферии святилища. Что соответствует меньшей значимости судьбоносного образа младенца в сравнении с эпонимом Пелопоннеса. При этом обилие найденных здесь вотивных предметов говорит о высокой популярности Героона.

К поздней архаике (вторая половина 6 в. до н. э.) можно отнести алтарь в виде прямоугольного сооружения из больших каменных глыб, поставленных на ребро. О том, что это сооружение служило жертвенником, говорит множество золы и костных останков животных. Возможно, этот алтарь также отмечал могилу Офельта.

Период раннего эллинизма представлен в Герооне очевиднее всего. Именно тогда сооружение приобрело пентагональную форму. Скорее всего, в связи со вторичным использованием более ранних построек, стоявших под углом друг к другу. К сожалению, от Героона сохранились в основном только фундаментные блоки. Часть стены была размыта рекой, мягкий камень сильно поврежден временем.

Древний Пелопоннес - _352.jpg

План Героона с указанием деталей, сохранившихся от различных эпох

Древний Пелопоннес - _353.jpg

Реконструкция Героона -вид со стороны храма Зевса

На то, что мы имеем дело с оградой, указывает отсутствие параллельных стен или укреплений несущих конструкций, а также отсутствие следов внутренней отделки и колонн, которые подпирали бы кровлю столь значительного по размерам здания. Тем не менее, активное использование конструкций примитивного здания при вторичной постройке можно считать вполне возможным. Территория Героона могла быть специально расчищена для нового строительства, но так и осталась незастроенной.

Внутри Героона найдено несколько каменных блоков, которые могли быть открытыми алтарями. На то, что алтарь был не один, указывал Павсаний. В центре Героона есть упавшие камни, указывающие на небольшое сооружение примерно 1,5х3 м. Оно также могло быть вторичной постройкой.

Вход в Героон осуществлялся со стороны храма Зевса, и здесь сохранились признаки монументального крыльца, облицованного лаконской плиткой (множество ее фрагментов было найдено на этом месте).

Миниатюрные сосуды, обнаруженные здесь, больше всего напоминают вотивные предметы, а чаши для питья служили для возлияний во время обрядов. Здесь найден также фрагмент терракотовой колонны, которая поддерживала сосуд для воды (perirrhanterion), на ободе которой сохранился фрагмент посвящения. Посвятительная или магическая надпись на кубке-скифосе также подтверждает религиозный характер Героона. Здесь же были найдены серебряные монеты из Сикиона и Эгины.

Еще более значим в этом плане жезл кадуцей – символ Гермеса Психопомпа, проводника души в потусторонний мир. На хтоническую и героическую ориентацию храма указывают также свинцовые пластинки с проклятиями. На одном из них воспроизводится магическая формула: "Я отвращаю Эвбола от Инис, от лица, от глаз его, из его уст, из его груди, из его души, из его живота, из его пениса, от ануса его, от всего его тела я отвращаю Эвбола от Инис".

Две статуэтки, обнаруженные в шахтном захоронении – плохо сохранившаяся каменная, изображающая женщину с ребенком на руках, и терракотовая – изображающая сидящего мальчика, видимо, держащего маску на лице. Первое изображение напоминает сюжет с Гипсипилой и Офельтом, второе – демонстрирует мистериальный жест, символизирующий преображение в духа и переселение в загробный мир.

В северо-западной части Героона был найден мраморный рельеф с частично сохранившейся посвятительной надписью, который вторично использовался при строительстве в 4 в. до н.э. На рельефе изображен мужчина, стоящий перед сидящими напротив женщинами. Рельеф датируется примерно 460 г. до н. э. В нем проявляются черты классического и архаического периодов. В мужской фигуре больше классики, а в женских – больше архаики. Одежда на мужчине объемная, на женщинах – двумерная.

Окрестности Немеи

Древняя Немея находится в узкой долине, по которой лежит путь из Коринфа в Аргос. На этом пути встречаются города Клеонаи (проводившего Немейские игры) и Микены. К западу от Немеи лежит Флиус (Флиунт) – город, который также имел значение для Немеи в силу тесного соседства. Об этих городах почти ничего не известно. О Флиунте если лишь сведения, что там в 7 в. до н. э. правил тиран Леон. Клеонаи – город средних размеров, который еще не был раскопан археологами. Но на поверхности земли видны остатки небольшого храма Геракла эллинистического периода и театра. Руины расположены среди виноградников. Сюда редко ступает нога туриста.

Древний Пелопоннес - _354.jpg

Древний Пелопоннес - _355.jpg

Руины храма Геракла

На юго-западе долины находится скалистая гора Даули, которая в древности носила наименование Трикаранон – трехглавая. С восточной стороны ущелья имеется плоская гора Фоукас – древний Апесас, место алтаря Зевса Апесантиоса. Эта гора разделяет Немею и Клеонаи.

83
{"b":"942516","o":1}