Литмир - Электронная Библиотека
Содержание  
A
A

Для рыхления плотного, каменистого и мерзлого грунтов при откопке котлованов под фундаменты опор применяются машины ударного действия, а для уплотнения бетонной смеси при сооружении фундаментов – вибраторы.

Для бурения шпуров под взрывные работы или заделку анкеров применяют перфораторы.

Технические характеристики ручного механизированного инструмента (бензомоторных пил, вибраторов, ручных сверлильных машин, гайковертов, машин ударного действия, перфораторов) приведены в табл. 5.39—5.50.

Таблица 5.39

Бензомоторные пилы

Справочник по строительству и реконструкции линий электропередачи напряжением 0,4–750 кВ - i_460.png

Таблица 5.40

Вибраторы электрические

Справочник по строительству и реконструкции линий электропередачи напряжением 0,4–750 кВ - i_461.png

Таблица 5.41

Вибраторы пневматические

Справочник по строительству и реконструкции линий электропередачи напряжением 0,4–750 кВ - i_462.png

Таблица 5.42

Машины ручные сверлильные электрические

Справочник по строительству и реконструкции линий электропередачи напряжением 0,4–750 кВ - i_463.png

Таблица 5.43

Машины ручные сверлильные пневматические

Справочник по строительству и реконструкции линий электропередачи напряжением 0,4–750 кВ - i_464.png

Таблица 5.44

Гайковерты ручные электрические

Справочник по строительству и реконструкции линий электропередачи напряжением 0,4–750 кВ - i_465.png
Справочник по строительству и реконструкции линий электропередачи напряжением 0,4–750 кВ - i_466.png

Таблица 5.45

Гайковерты ручные пневматические

Справочник по строительству и реконструкции линий электропередачи напряжением 0,4–750 кВ - i_467.png

Таблица 5.46

Машины ударного действия электрические

Справочник по строительству и реконструкции линий электропередачи напряжением 0,4–750 кВ - i_468.png

Таблица 5.47

Машины ударного действия пневматические

Справочник по строительству и реконструкции линий электропередачи напряжением 0,4–750 кВ - i_469.png

Таблица 5.48

Бетоноломы и молотки отбойные пневматические

Справочник по строительству и реконструкции линий электропередачи напряжением 0,4–750 кВ - i_470.png

Таблица 5.49

Молотки отбойные электрические

Справочник по строительству и реконструкции линий электропередачи напряжением 0,4–750 кВ - i_471.png

Таблица 5.224

Перфораторы

Справочник по строительству и реконструкции линий электропередачи напряжением 0,4–750 кВ - i_472.png

5.5. МАШИНЫ И УСТРОЙСТВА ДЛЯ ВЫПОЛНЕНИЯ РЕМОНТНЫХ РАБОТ НА ВЫСОКОВОЛЬТНЫХ ЛИНИЯХ ЭЛЕКТРОПЕРЕДАЧИ

Инженерный комплекс для ремонта линий электропередачи. Для ремонта линий электропередачи напряжением 110–750 кВ и устранения аварий на линиях ОАО «Проектэнергомаш» разработало инженерный комплекс, который предназначен для ремонта и замены проводов; замены вышедших из строя изоляторов; ремонта металлических опор; удаления кустарника на месте производства работ; сварки отдельных деталей; электропитания аппаратуры и инструмента напряжением 220 В и освещения рабочих мест.

В состав инженерного комплекса входят мобильная энергетическая мастерская на базе шасси автомобиля Урал-43203-41 и специальный жилой блок для проживания на трассе бригады ремонтников.

Мобильная энергетическая мастерская (рис. 5.2) содержит кузов-фургон, разделенный перегородкой на жилой отсек, оборудованный спальными местами, и производственный отсек, оборудованный контейнерами для крупногабаритных приспособлений и инструмента, энергоустановкой и грузоподъемным механизмом, установленным перед дверью производственного отсека.

В производственном отсеке размещено оборудование для производства ремонтных работ (насосная станция, опрессовочный агрегат для работ по опрессовке проводов ЛЭП, дизельный электроагрегат со сварочным генератором типа «Eisemann»).

Помимо оборудования в составе мастерской предусмотрены инструмент и принадлежности для ремонта: бензопила «Husgvarna», углошлифовальная машина, дрель аккумуляторная, тросоруб ударного действия, комплект матриц для пресса, комплект вайм для изоляторов, тали рычажные г/п 0,5; 3 и 6 т, приспособление для термитной сварки проводов, кусторез, набор для электросварщика, слесарный и шанцевый инструмент, блоки монтажные г/п 0,8; 2,5 и 3 т.

Технические характеристики энергетической мастерской:

Справочник по строительству и реконструкции линий электропередачи напряжением 0,4–750 кВ - i_473.png
Справочник по строительству и реконструкции линий электропередачи напряжением 0,4–750 кВ - i_474.png

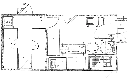
Рис. 5.2. Размещение оборудования внутри мобильной энергетической мастерской:

1 – шкаф; 2 – отопитель; 3 – трап; 4 – аптечка; 5 – диван-рундук; 6 – полка откидная; 7 – столик; 8 – контейнеры для оборудования и инструмента; 9-удлинитель однофазный; 10 – тележка монтажная; 11 – бочки для полипропиленовых канатов; 12 – канистра; 13– барабан для кабеля; 14 – электрогенератор; 75—насосная станция; 16– опрессовочный агрегат; 77—кран-укосина; 18 – дверь полуторастворчатая; 19– окно; 20 – дверь одностворчатая

Специальный жилой блок состоит из фургона, установленного на раму, которая опирается на подкатную тележку, соединенную с ней стремянками, и подкатную тележку с дышлом, соединенную с рамой через поворотное устройство. Подкатные тележки на пневмошинах имеют тормозную систему, работающую от тормозной системы буксира. Фургон разделен на два жилых отсека и один бытовой. Каждый жилой отсек имеет четыре места для отдыха, столик, шкаф и электрообогреватель.

Бытовой отсек расположен в средней части фургона, в нем размещены: кухонный стол с плитой, раковина с баком и нагревателем, бак для воды, холодильник, шкаф для рабочей одежды, огнетушитель, аптечка, электрообогреватель и электрощиток.

Основные параметры бытового отсека:

Количество спальных мест………………………………………… 8

Нагрузка колеса на дорогу, кг…………………………………….. 775

Скорость буксирования, км/ч……………………………………. 50

Длина жилого помещения, мм …………………………………… 6150

Габаритные размеры, мм:

длина………………………………………………………………….. 8250

ширина……………………………………………………………….. 2500

высота ………………………………………………………………… 3600

Масса, кг…………………………………………………………………… 3100

Питание жилого блока осуществляется от внешних источников электроэнергии напряжением 220 В и частотой 50 Гц. Жилой блок снабжен внешними световыми приборами (освещение номерного знака, сигнализация торможения и поворота), световозвращателями, а также имеет подключение к внешней световой сигнализации буксира.

Инженерный комплекс имеет высокую проходимость и позволяет доставлять на трассу ЛЭП ремонтный персонал и оборудование, необходимое для планового и аварийного ремонта проводов, тросов и опор ЛЭП, автономно производить на линии основные эксплуатационно-ремонтные работы и за счет механизации основных процессов сократить сроки их выполнения.

Серийное производство инженерного комплекса освоено на ОАО «Мытищинский приборостроительный завод».

Устройство для выполнения работ на поддерживающих гирляндах ВЛ 110–750 кВ (модель № 13462.18.00.000) предназначено для размещения в нем монтера при осмотре гирлянд и замене дефектных изоляторов, при замене сцепной арматуры поддерживающих гирлянд на воздушных линиях электропередачи 110–750 кВ (рис. 5.3).

5

Справочник по строительству и реконструкции линий электропередачи напряжением 0,4–750 кВ - i_475.png

Рис. 5.3. Устройство для выполнения работ на поддерживающих гирляндах ВЛ 110–750 кВ (модель № 13462.18.00.000):

1 – монтерский подъемник; 2 – ручная лебедка; 3 – захваты для крепления к уголкам траверсы опоры; 4 – канат для подъема и страховки; 5 – устройство для замены изоляторов

42
{"b":"117380","o":1}