Литмир - Электронная Библиотека
Содержание  
A
A

Если вы предполагаете на своем участке посадить еще деревья и кустарники, то нижняя неплодородная земля из ям подойдет для этого.

А можно предварительно выкопать яму под погреб в помещении за северной стеной вегетария (рис. 13–15).

В конце концов, соберите мусор. Все подойдет для создания уклона почвы в вегетарии.

Когда трубы будут аккуратно уложены, соединены с вертикальными воздухозаборниками и коллекторами, их можно засыпать первым слоем почвы. Это верхний слой почвы, предварительно снятый нами, компост, перегнивший навоз и т. д. Такой материал — хорошее питание для будущих посадок и посевов.

Нулевой цикл готов. Окончательно формирование грунта в вегетарий и наружная обсыпка будут проведены после создания ограждения.

2.3. Ограждение вегетария

Нами уже отмечалось, что каркас ограждения может быть выполнен из дерева, металла и их комбинаций. Что надежнее? Конечно, металл. Но он дорог, требует сварочных работ. Дерево подвержено гниению, по проще в обработке, монтаже и транспортировке. Логический вывод — комбинация этих материалов. Все несущие элементы (стойки, балки) желательно сделать из прочных труб, стального уголка, а шпросы — из дерева.

Чтобы уменьшить затраты на свой первый вегетарий, можете использовать различные готовые конструкции. У многих в хозяйстве найдутся старые рамы, доски, трубы, профильный металл. Творчески подойдите к своим возможностям и вооруженные желанием постройте солнечный вегетарий любой конструкции и площади. Самое главное — выполнить все требования по его расположению, пропорциям, остеклению и т. д. Можно построить в нем даже «буржуйку», если пет электричества, вентиляторов. Но тогда придется проветривать вегетарий с помощью фрамуг, дверей, отапливать ночью, часто поливать и подкармливать посаженные растения.

Все это следует учитывать, помня, что к строительству вегетария — замкнутой системе жизнеобеспечения нужно подойти серьезно и творчески. Для всех конструктивных материалов подойдет фундамент, описанный выше. Особенно удобны вставленные в столбики куски уголка (анкеры). К ним можно приварить металлические или прибить, привинтить деревянные стойки (рис. 15). Чем тщательнее установлены опорные уголки и чем они выше, тем проще выполнить эту операцию.

Рис 15. Сооружение деревянного каркаса:

Солнечный вегетарий. Витаминное изобилие круглый год - img_21.png

а) Конструкция вегетария из дерева

Рассмотрим конструкцию вегетария из дерева, которое хорошо остругано, пропитано антисептиком или тщательно обработано раствором медного купороса, покрыто горячей олифой. Такая конструкция послужит вам многие годы. Следует только периодически проводить профилактические осмотры, зачистки, пронитки.

Начнем со стоек. Тут предпочтителен брус сечением 10х10 см. Для крепления желательно использовать болты с шайбами и гайки, можно применить и длинные гвозди или шурупы.

Устанавливаем все девять стоек. Теперь на них можно водрузить балки, на которые будут опираться шпросы.

Размеры и форма шпросов приведены па рис. 16. Если ваши заготовки имеют иные размеры, то это следует учесть, делая для них в балках необходимые прорези. Совпадение прорезей на балках и шпросах обеспечит монолитность конструкции, и, самое главное, стекла лягут не только на шпросы, но и на балки. Не будет щелей.

Рис. 16. Установка деревянных шпросов:

Солнечный вегетарий. Витаминное изобилие круглый год - img_22.png

Балка крепится к стойкам гвоздями, шкантами (деревянные гвозди, плотно вбитые в просверленные отверстия).

Желательно предварительно на земле или в мастерской прорезать и тщательно подогнать все элементы соединительных узлов.

Если вам нехватает столярного мастерства, шпросы можно установить, как показано на рис. 17. Но тогда после остекления между шпросами и передней балкой будет щель. Ее можно устранить набивкой накладки из доски соответствующей толщины (или нескольких тарных дощечек), а также прокладкой из резины, ветоши. Однако это будет уже не то качество. На рисунке приведен вариант конструкции вегетария, где стойки — бревна или толстые жерди, в которых выбраны (например, ручной циркулярной пилой) четверти для установки рам. А вот балки желательно сделать из бруса или нескольких сбитых досок.

Как вариант, показан столбчатый фундамент со стойками в виде вмурованных в бетонные подушки асбоцементных труб. Но не забудьте залить в эти трубы смолу, антисептик, гидроизоляцию.

Рис. 17. Солнечный вегетарий со стойками из бревен:

1 — стойка — бревно 0 110–120 мм. L= 2200 мм (9 шт) 2 — несущая балка — брус 60x100 мм. L= 5800 мм (3 шт) 3 — верхняя рама 2740x4500 мм (2 шт. левая и правая) 4 — передняя рама 2630x1800 мм (2 шт) 5 — боковая рама 4076x1800 (2 ил) б — нижняя обвязка — брус 60x60 мм. 1= 2630 мм (2 шт) 1=4076 мм (2 шт) 7 — асбоцементная труба 0 120–130 мм. 1.= 1200 мм (3 шт}. 800 мм (3 шт) 500 мм (3 шт) 8 — бетонная пятка; 9 — накладка 110x35 мм.

Солнечный вегетарий. Витаминное изобилие круглый год - img_23.png

На рис. 18 изображены передние и верхние деревянные рамы для вегетария площадью 20 кв. м. Заказать ли их, купить или сделать самому — решать вам. Но напомним, что они не обязательны. Проще заготовить обычные шпросы с выбранными для стекла четвертями.

Рис. 18. Рамы к варианту солнечного вегетария со стойками из бревен:

Солнечный вегетарий. Витаминное изобилие круглый год - img_24.png

б) Конструкция вегетария из металла

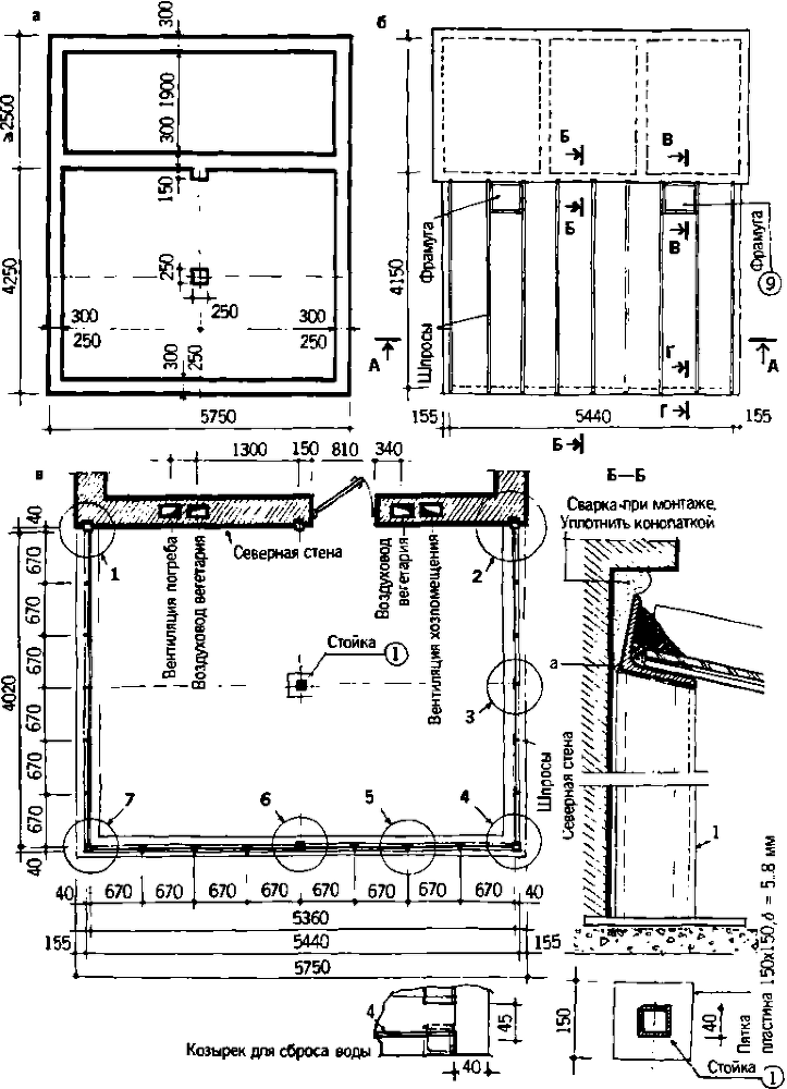
Типовий профиль для конструкции вегетария из металла, к сожалению, только один — уголок различного сечения. Способ соединения — сварка, хотя возможен и болтовой. На рис. 19 приведены принципы планирования фундамента, возведения металлического каркаса, верхних конструкций с фрамугами для аварийного охлаждения вегетария в жаркие дня, соединения крыши с северной стеной.

Рис. 19. Солнечный вегетарий из металла. Планы фундаментов: (а), кровли (б), стен(в).

Солнечный вегетарий. Витаминное изобилие круглый год - img_25.png

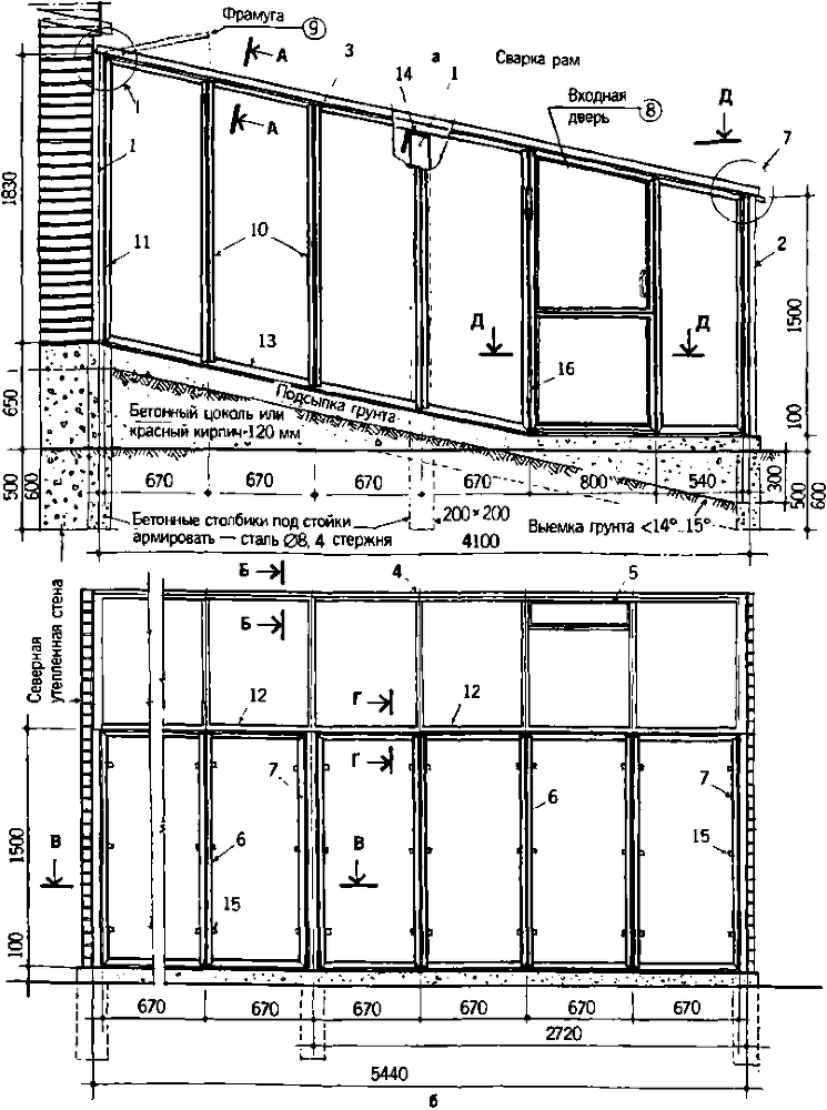
Конструкция боковых и передних рам такого вегетария изображена па рис. 20, а узлы, детали и спецификация — на рисунках 21, 22.

Рис. 20. Солнечный вегетарий из металла:

Солнечный вегетарий. Витаминное изобилие круглый год - img_26.png

Спецификация

Солнечный вегетарий. Витаминное изобилие круглый год - img_27.png

Рис 2L Солнечный вегетарий из металла. Узлы и детали:

Солнечный вегетарий. Витаминное изобилие круглый год - img_28.png
Солнечный вегетарий. Витаминное изобилие круглый год - img_29.png

Рис. 22. Солнечный вегетарий из металла. Узлы и спецификация:

Солнечный вегетарий. Витаминное изобилие круглый год - img_30.png

Для шпросов оптимальный профиль — Т-образный. Но его можно заменить двумя сваренными между собой уголками или уголком, сваренным с полосой металла. Последний вариант позволит вам сэкономить несколько сот килограммов металла, что немаловажно. Стойки в виде колонн квадратного сечения выполнены из двух сваренных уголков.

Для борьбы с коррозией (влажность и тепло в вегетарий ее стимулируют) желательно сварку делать нержавеющей сталью, а всю конструкцию тщательно прогрунтовать и покрасить.

В настоящее время в продаже встречаются профили не только из черных металлов, но также из алюминия и его сплавов. Иметь их в своем распоряжении при строительстве вегетария очень перспективно.

7
{"b":"943516","o":1}