Литмир - Электронная Библиотека
Содержание  
A
A

Прежде всего, материалы для фундамента. Но так как с его внешней стороны можно и нужно сделать насыпи, то его теплоизоляционные свойства — не самое главное. Основное — прочность.

Самый простой, экономный и при этом достаточно прочный — ленточно — столбчатый фундамент. Столбики сечением 20x20 см целесообразно изготовить на месте литыми с широким (50 х50 см) основанием в земле, а затем связать их узким (10–20 см) ленточным фундаментом без подушки. Такой фундамент требует 1,5–2 куб. м бетона с заполнителем (щебенка), куски арматурной проволоки и девять анкеров (стальных уголков) длиной 50 см для вегетария с металлическим каркасом или 70—120 см — с деревянным. Уголки необходимо вставить определенным образом в столбики при отливке, чтобы затем крепить к ним (прибить, приварить) стойки вегетария.

Минимальное количество материалов для конструкции вегетария площадью 20 кв. м:

• стойки длиной 2 м — 9 штук;

• балки длиной 5 м на передний, задний и средний ряды стоек — 3 штуки;

• обвязка по фундаменту между стойками: длиной 2 м — 4 штуки, длиной 2,5 м — 4 штуки. Эти материалы должны быть максимально прочными, так как определяют устойчивость всей конструкции. Поэтому, если используется дерево, их сечение должно быть порядка 100x100 мм, стальной уголок — 50x50 мм, стальная труба — диаметром не менее 80 мм.

На созданном каркасе закрепляются (сваркой, гвоздями, болтами) шпросы. Для крыши вегетария их нужно 8—10 штук длиной 4 м, для трех стен — 22–26 штук длиной 2 м каждый. Задняя стенка вегетария должна быть массивной, теплой. Это принципиальное требование. Поэтому вегетарий желательно «прислонить» к южной стороне существующей постройки или соорудить хозностройку, чтобы стена между ними использовалась наиболее рационально.

Если рядом с вегетарием не планируется никакое помещение, то лучше всего его заднюю стену (2,5x5 м) сделать из кирпича либо шифера (два слоя, между ними — утеплитель), глиносоломы, досок, рубероида и др.

Каким должно быть покрытие вегетария? Нет никаких сомнений — только стекло. Пленку временно можно применить лишь для стен вегетария. Стекло обладает необходимыми оптическими свойствами, выдерживает снеговую нагрузку, долговечно, обеспечивает «парниковый эффект». Но если вы купили специальные тепличные пластиковые панели, то можете использовать и их. Они легкие и не бьются, шпросы под ними могут быть тоньше и легче.

Однако пи в коем случае не применяйте полиэтиленовую пленку. Мы уже отмечали, что она лишь в течении 2–4 месяцев защищает растения от дождя (по не от холода), а затем мутнеет, рвется. Да и цена пленки высока. Купив на вегетарий 46 кв. м стекла, вы окуните его за год — полтора, а учитывая конечные продукты (овощи, ягоды и др.), окупите за это же время и все затраты на строительство.

И еще одна область затрат: элементы системы аккумулирования тепла в почве (трубы или шифер, 1–2 кухонных вентилятора) и элементы автоматики (измерители температуры почвы и воздуха, программатор). Для вегетария круглогодичного использования необходимо предусмотреть (для ненастных дней) электрокалорифер мощностью 1–2 кВт или печное калориферное отопление.

Ниже приводятся подробные сведения о таких печах — калориферах.

Для обеспечения автоматического почвенного полива нужно заготовить металлические и полиэтиленовые трубы. И, наконец, необходимы материалы для электропроводки, для крепления стекла и других монтажных работ в соответствии с выбранным вариантом проекта солнечного вегетария.

2.2. Нулевой цикл

Со всей площади выбранного под вегетарий участка необходимо спять плодородный слой земли и сделать из него, дерна, навоза, а также растительных остатков компостный штабель (см. раздел 3). Пока будет идти стройка, у вас сформируется прекрасная гумусная почва для вегетария. Обычно вегетарий приходится строить на уже освоенном участке, поэтому использование автокранов, автомашин, применение крупных бетонных блоков для фундаментов — проблематично. Да и очень дорого. Лучше всего его соорудить самому.

Мы хотим предложить вам простой, экономичный, очень прочный фундамент, который можно назвать и ленточным, и столбчатым (непрерывным и прерывным) одновременно.

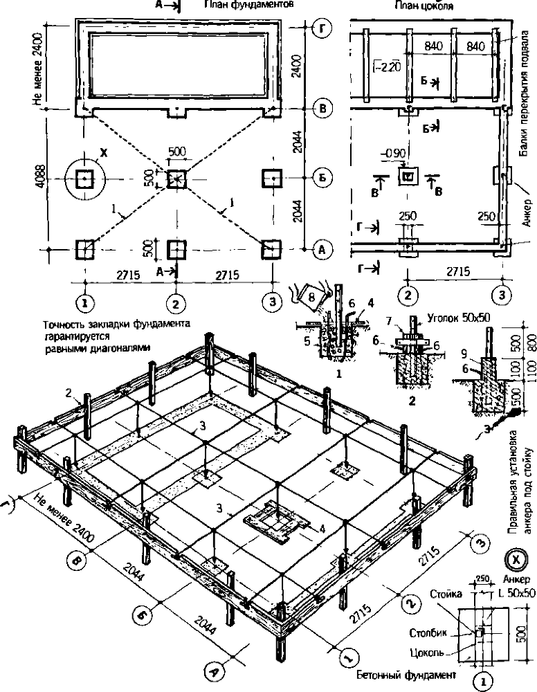
На первом этане его сооружения на расчищенной от почвы земле размечаются, не считая подсобного помещения» девять точек — места для столбиков, где и выкапывают ямы размером 50x50x50 см (рис. 13).

Рис. 13. Последовательность сооружения фундамента солнечного вегетария с хозблоком:

1 — диагонали (их равенство гарантирует точность закладки фундамента); 2 — обноска из досок и стоек,

3 — шнуры с отвесами, 4 — шаблон из досок; 5 — щебень; 6 — арматурная проволока; 7 — опалубка, 8 — цементный раствор; 9 — бетон.

Солнечный вегетарий. Витаминное изобилие круглый год - img_19.png

В каждую яму вставляют (продавливая в землю) длинные куски арматуры, проволоки, а затем доверху засыпают щебенку. Если щебенку залить жидким раствором (1 часть цемента, 2–3 части носка), то через 5–7 дней будут готовы подушки (пятки) для столбчатого фундамента с торчащими кусками арматуры длиной 20–30 см.

Теперь приступаем ко второму этану. На бетонных подушках вокруг арматуры устанавливаем опалубку с внутренним сечением 20x20 см. Высота опалубки первого (южного) ряда столбиков 20–40 см. После подсыпки земли столбик должен иметь высоту 5—10 см.

Опалубка заднего (северного) ряда на 1 м выше переднего, что в дальнейшем обеспечит уклон поверхности вегетария 15°. Высота опалубки среднего ряда — на 0,5 м выше, чем первого (средняя линия треугольника).

В опалубку заливается густой цементный раствор (с заполнителем или без него), вертикально вставляются арматурная проволока и кусок стального уголка сечением не менее 50x50 мм и длиной 50—120 см.

Если предполагается металлический каркас вегетария, уголок (анкер) должен выступать из столбика на 3–7 см. К нему в дальнейшем привариваются стойки, обвязка. Если планируется деревянный каркас, то уголок может быть высотой 30–70 см и должен иметь отверстия для гвоздей.

Положение уголка в столбике должно быть таким, чтобы стойки ограждения располагались по наружным граням столбиков (рис. 14). Тогда фундамент и каркас будут на одной вертикальной наружной линии. Это удобно для организации стока воды, герметизации швов и щелей.

Рис. 14. Рытье траншей, заливка фундамента.

Солнечный вегетарий. Витаминное изобилие круглый год - img_20.png

А зачем нужно, чтобы из опалубки выступала арматурная проволока?

Через неделю, когда столбики затвердеют, можно снять их опалубку и залить между ними, предварительно установив щитовую опалубку, ленточный фундамент. При этом арматурная проволока соединит его со столбиком. Для заливки потребуется густой цементный раствор. В пего можно добавить щебенку, желательно вставить отрезки старых труб, металлических профилей, проволоки и др. Тогда фундамент может быть толщиной всего 10–20 см и без подушки в земле. Местами (с шагом 1 м) между столбиками предварительно можно вбить в землю на глубину до 50 см куски труб или иной прочной арматуры. При этом прочность фундамента будет обеспечена навсегда.

Наличие столбиков облегчает установку опалубки и строительство фундамента. Его толщина достаточна для прочности, а наружные земляные откосы создадут в дальнейшем требуемую теплоизоляцию и придадут дополнительную жесткость конструкции. Теперь необходимо высохший фундамент тщательно покрыть горячим битумом или обернуть рубероидом. Это и утеплит вегетарий, и предотвратит дренаж влаги через фундамент. Фундамент готов. В его границах с уклоном 15° насыпается земля, мусор (рис. 14) и укладываются трубы или шифер шалашиком (рис. 15) для системы аккумулирования тепла. Средняя линия труб должна быть на глубине 35 см от намеченного уровня поверхности земли в вегетарии. Коллекторы могут быть также трубчатыми или выложены из кирпича (особенно для шиферных воздушных каналов). Уклон в 15° нужно создать перед укладкой труб из плотной (желательно глинистой) земли, тщательно утрамбовав ее и многократно смочив водой. Для уклона понадобится дополнительный грунт. Где его взять?

6
{"b":"943516","o":1}