б) для управления движением танка.
Бортовые фрикционы расположены в передней части танка и состоят из ведущих и ведомых частей фрикциона и привода к нему. К ведущим частям фрикциона (рис. 53) относятся вал фрикциона (9), внутренний барабан (2), шесть стальных дисков (10) и чугунный прижимкой диск (5); к ведомым частям относятся: наружный барабан (1) и семь стальных дисков (11), обшитых феіродо; к приводу управления относятся: двухллечий рычаг (7), нажимная муфта (8), нажимные рычаги (4), а также рычаг и тяги, идущие от места водителя к двухплечему рычагу.
Ведущие части. Вал фрикциона (9) изготовлен из хромониккелевой стали. Для облегчения внутри он просверлен. Один конец вала заканчивается фланцем; рядом с фланцем поверхность вала отшлифована, так как по этой поверхности вала перемещается нажимная муфта (8); следующая часть вала профилирована для соединения его с внутренним барабаном; далее вал обточен по меньшему диаметру и, наконец, другой конец вала представляет цапфу, которой он центрируется в бронзовой втулке валика конечной передачи (15).
Внутренний барабан фрикциона (2) отлит из ковкого чугуна; он служит для соединения ведущих дисков и передачи через них вращения наружному барабану. Барабан своей ступицей, внутри которой имеются шлицы, установлен на профилированной части вала фрикциона. Положение барабана вдоль оси вала определяется установочным кольцом. На трубчатой ступице барабана установлен однорядный опорный шариковый подшипник, запрессованный в ступицу наружного барабана. На наружной поверхности барабана, за одно целое с ним, изготовлено двенадцать продольных шпонок, на которые надеваются ведущие диски, удерживаемые на барабане кольцевым бортиком. Сбоку по окружности барабан имеет шесть проушин, с которыми посредством осей соединяются шесть нажимных рычагов (4). Диск барабана в средней своей части имеет кольцевой прилив, представляющий маслоулавливатель. Для выбрасывания масла с внутренней части барабана наружу служат отверстия, находящиеся внутри маслоулавливателя.
Ведущие диски (10) стальные, служат для передачи усилия с внутреннего барабана на наружный. Для надевания на шпонки барабана ведущие диски по внутренней окружности имеют двенадцать шпоночных канавок. Ведущих дисков шесть.
Прижимной диск (5) отлит из ковкого чугуна; он служит для прижатия ведущих дисков к ведомым, благодаря чему между дисками возникает сила трения, достаточная для передачи усилия от ведущих дисков на ведомые. По внутренней окружности диска имеются также двенадцать шпоночных канавок для надевания его на ведущий барабан фрикциона.
Рис. 53. Детали бортового фрикциона.
1 — наружный барабан, 2 — внутренний барабан 3 — ведущий диск, 4 — ведомый диск, 5 — прижимной диск, 6 — вал фрикциона.
Ведомые части. Наружный барабан (1) отлит из ковкого чугуна, он служит для передачи вращения через конечную передачу ведущему колесу движителя и для соединения ведомых дисков. Одновременно наружный барабан (1) фрикциона является тормозным барабаном, для этого наружная поверхность барабана гладкая, так как она охватывается тормозной лентой. На внутренней поверхности барабана изготовлено за одно целое с ним двенадцать шпонок, на которые надеваются ведомые диски.
Диск барабана имеет ступицу, в которую впрессовывается однорядный опорный шариковый подшипник. Подшипник зажимается между бортиком ступицы и концом валика конечной передачи, Ступица барабана имеет фланец, к которому крепится шестью болтами валик конечной передачи. Между наружным (1) и внутренним (2) барабанами проложен сальник для удержания смазки подшипника.
Ведомые диски (11) стальные; для увеличения трения снаружи обеих сторон дисков прикреплено феродо. Для надевания на барабан диски имеют двенадцать шпоночных канавок. Ведомых дисков семь.
Привод управления: двуплечие рычаги (7) стальные штампованные, надеваются на цапфы кронштейна (13), укрепленного на передней поперечной трубе (12) танка. Концы рычагов соединяются с цапфами нажимной муфты (8) и с тягами подвесных рычагов уравнителей, подвешенных к верхнему броневому листу отделения управления. Двумя пружинами они оттягиваются вперед (рис. 55).
Нажимная муфта (8) (рис. 52) состоит из стальной втулки, опорного однорядного подшипника, насаженного на втулке корпуса, крышки подшипника и двух стальных колец.
Корпус подшипника отлит из чугуна, на корпусе имеются две цапфы для соединения с двухплечими рычагами (7); внутри корпуса впрессован шариковый подшипник (19), которым корпус туго насаживается на поверхность стальной втулки и вместе с последней надевается на вал фрикциона (9). На поверхности втулки подшипник закрепляется при помощи двух колец — установочного и пружинного. Втулка имеет кольцевой паз, куда входят длинные концы нажимных рычагов (4) и каналы для прохода смазки.
Нажимные рычаги стальные, штампованные: они имеют отверстия для прохода осей, соединяющих их с проушинами внутреннего барабана (2). Длинные концы рычагов входят в кольцевой паз втулки нажимной муфты (8); короткие концы имеют винты (20), которыми они нажимают на прижимной диск (5) фрикциона. Ввернутые в рычаги винты закрепляются в определенном положении при помощи контргаек.
3. Назначение и устройство тормозов
Тормоза в танке служат: а) для быстрых остановок танка, б) для более крутого поворота танка, в) для удержания танка на подъемах и уклонах; г) для управления танком при преодолении препятствий.
Тормозная лента охватывает наружный барабан; она состоит из двух половин — верхней (16) и нижней (6); на концах обеих половин имеются ушки, которыми они соединяются с одной стороны при помощи шарниров (4) и сухарей с кронштейном (2), укрепленным на передней поперечной трубе танка, а о другой при помощи шарнира и стержня — с тормозным рычагом (13). В верхней ленте (16) прикреплен конец оттяжной пружины (17), второй конец пружины прикреплен к броне (1). К нижней ленте (6) прикреплен стержень (18), который соединяет ее с тормозным рычагом (13), Стержень (18) своим навинтованным концам входит в сухарь тормозного рычага и затягивается регулирующей гайкой (15); на нем одета спиральная пружина (14), которая одним концом упирается в сухарь а вторым в заточку стержня (18); отход нижней ленты (6) от барабана ограничивается регулирующим винтом (10), ввернутым в кронштейн (8), прикрепленный к полу танка. Винт (10) контрится гайкой (9). Оттяжка ленты (6) после торможения усиливается спиральной пружиной (7), прикрепленной одним концом к ленте, а вторым к броне (1). Для усиления трения лента снабжена накладками из феродо.

Рис. 54. Тормоз, общий вид.
1 — броня, 2 — хвостовой кронштейн, 3 — стопор, 4 — шарнирное соединение ленты, 5 — винт хвостового кронштейна, 6 — нижняя лента, 7 — наружная пружина нижней ленты, 8 — кронштейн, 9 — контргайка, 10 — регулирующий винт нижней ленты, 11 — соединение тяги, 12 — тяга, 13 — тормозной рычаг, 14 — возвратная пружина, 15 — регулирующая гайка, 16 — верхняя половина тормозной ленты, 17 — оттяжная пружина верхней ленты, 18 — стержень нижней ленты, 19 — ролик рычага, 20 — боковой сегмент, 21 — рычаг управления.
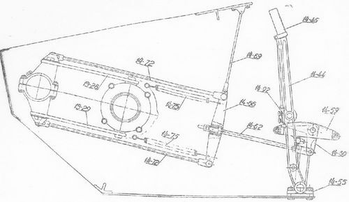
Рис. 55. Правый рычаг управления с приводом выключения бортового фрикциона.
13-28 и 13–29 — двухплечие рычаги, 14–72 — продольные тяги, 14–75 — спиральная пружина, 14–69 — подвесная тяга, 14–66 — тяга уравнительная, 14–62 — регулируемая тяга. 14–46 — обойма, 4-44 — правый рычаг управления, 14–92 — собачка, 14–59 — сегмент, 14–60 — коленчатый рычаг, 14–55 — кронштейн.
Рычаги управления (рис. 55, 56 и 57). Рычаги управления изготовлены штамповкой из стали. Правый рычаг 14–44 шарнирно соединен о кронштейнам, приболченным к броне изнутри корпуса танка; левый рычаг укреплен на конце валика, идущего поперек танка. Валик вращается в подшипниках двух кронштейнов.