Литмир - Электронная Библиотека

Курихара: Да нет, просто твои слова натолкнули меня на одну мысль. Кстати, я правильно помню, изначально в этом доме жили трое: муж, жена и ребенок?

Автор: Да.

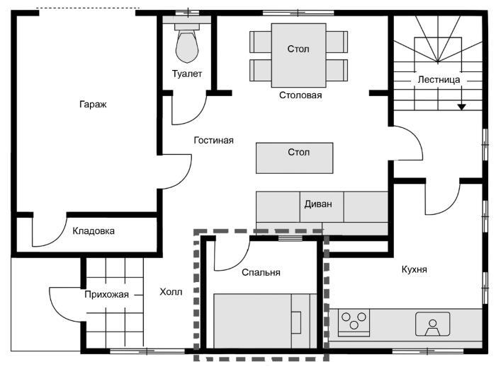
Курихара: Получается, одна кровать лишняя. Супруги спали в спальне на втором этаже, а ребенок – в детской. Для кого тогда кровать на первом этаже?

Автор: Может быть, для гостей?

Курихара: Да, скорее всего. Уж не знаю, кем гости приходились владельцам, но в доме они бывали часто. Есть у меня одна теория, которая позволяет объяснить все: и детскую без окон, и лаз, про который ты говорил, и регулярные визиты гостей. Наверное, она покажется тебе дикой… Не воспринимай то, что я сейчас скажу, серьезно. Считай это просто плодом моей больной фантазии.

Первый этаж

Странный дом - i_022.jpg

Больная фантазия

Курихара: Раньше в этом доме жила супружеская пара с ребенком. Причем ребенка держали в его комнате взаперти с определенной целью. Периодически родители приглашали домой гостей: общались с ними в гостиной, накрывали для них стол. Муж подливал гостю спиртное, тот с удовольствием пил. Когда гость был уже порядком пьян, жена предлагала: «Может быть, вы останетесь переночевать? У нас есть свободная спальня». А муж добавлял: «Я набрал для вас горячей воды в ванну. Пожалуйста, оставайтесь».

Второй этаж

Странный дом - i_023.jpg

Первый этаж

Странный дом - i_024.jpg

Тогда гостя вели в ванную на втором этаже. Стоило ему зайти внутрь, как женщина подавала сигнал ребенку, находившемуся в своей комнате. Он брал с собой некий предмет, пролезал в отверстие в полу детской и по тайному проходу на первом этаже проникал в ванную. А потом…

Вонзал в спину гостя орудие убийства.

Автор: Что?! С чего ты это взял?..

Курихара: Я же говорю, это просто мое больное воображение. Голый, безоружный, с затуманенным от алкоголя сознанием, гость плохо соображал и не мог сопротивляться. Ребенок раз за разом наносил ему удары в спину. Кровь лилась рекой. Гость, так и не успев понять, что произошло, замертво падал на пол. В общем, этот дом был построен специально для убийств.

Автор: Не может быть… Ты шутишь?!

Курихара: В целом да. Но, может быть, я и прав. Ты ведь наверняка и сам читал в интернете о всяких загадочных происшествиях? В сети выкладывают кучу таких историй: невероятных, поражающих своей жестокостью. Больше похожих на плохие ужастики, чем на реальные случаи. В мире есть безумцы, способные на такое, что нам с тобой даже представить себе сложно. Например, супружеская пара, которая особым образом спроектировала дом и использовала ребенка, чтобы совершать убийства его руками… Лично я могу допустить, что такое возможно.

Автор: Да, но… Если даже ты прав… Зачем им это?

Курихара: Хороший вопрос. Нет смысла разрабатывать такой хитроумный план ради того, чтобы избавиться от одного конкретного человека. Боюсь, они совершали убийства регулярно. В таком случае ими вряд ли двигали личные мотивы. Скорее, они просто выполняли заказы.

Автор: Заказы?

Курихара: Да, в сети полно таких сайтов: на них можно разместить свой «заказ» и найти исполнителя, чтобы «делегировать» ему совершение убийства. Противозаконная активность в интернете уже давно стала серьезной проблемой. В большинстве случаев заказчиков просто обманывают и разводят на деньги, но я слышал, что найти реального исполнителя тоже возможно. Берут недорого – 200–300 тысяч йен[2]. Это, так сказать, «киллеры-любители», но, как я слышал, со временем их методы становятся все более разнообразными и изощренными.

Автор: То есть получается, что этот дом – место работы двух наемных убийц?

Курихара: Такое возможно. Хотя, повторюсь, это просто мои безумные фантазии.

Супружеская пара киллеров, которая использовала ребенка, чтобы совершать убийства. Это уж слишком даже для самой безумной фантазии.

Курихара: Но давай разовьем эту мысль дальше. Ты упоминал, что шкаф в детской скрывал лаз в полу. А ведь в этой комнате есть еще один шкаф. Можно предположить, что под ним тоже находится отверстие.

Автор: Пожалуй…

Курихара: И куда же можно через него попасть?

Автор: Хм… В кладовку.

Курихара: Именно, в кладовку. Получается, в этом доме был еще и проход, благодаря которому можно было легко избавляться от трупов.

Автор: Каким образом?

Второй этаж

Странный дом - i_025.jpg

Первый этаж

Странный дом - i_026.jpg

Курихара: Вернемся к сцене убийства. Допустим, все прошло гладко. Но нельзя же оставить труп лежать в ванной. Необходимо избавиться от тела так, чтобы его никто не увидел. И снова нашу парочку киллеров выручает тайный проход в детскую. Отверстие лаза узкое, тело взрослого человека в него не пройдет. Поэтому супруги пилой или чем-то еще разделывают труп на небольшие куски, которые можно легко протолкнуть через дыру в полу. Настолько маленькие, чтобы ребенку было не слишком тяжело их перетаскивать.

Автор: Что?!

Курихара: Супруги по кускам сбрасывают тело в отверстие. У ребенка уходит несколько часов на то, чтобы по одному перенести их в свою комнату. Там он бросает их в другое отверстие. Так останки перемещают из ванной в кладовку. А рядом с ней расположен гараж. Расчлененное тело засовывают в багажник машины, родители отвозят его в лес неподалеку и оставляют там.

Действительно, ведь одним из главных достоинств этого дома было его расположение: недалеко от станции, но при этом в зеленом районе, рядом с лесом.

Курихара: Получается, сами убийства и все дальнейшие манипуляции с трупами происходили в помещениях, где нет окон. Никаких рисков, что с улицы что-то увидят. Нашим убийцам ничего не мешало делать свое грязное дело хоть круглый год, в любое время дня и ночи. Ну как, что ты об этом думаешь?

Странный дом - i_027.jpg

Курихара рассуждал уверенно, со знанием дела, поэтому я просто молча слушал его и старался лишний раз не перебивать, но теперь все-таки решился озвучить свои сомнения.

Автор: Хм-м-м… Предположим, ты прав… Но зачем придумывать все эти ухищрения с тайными проходами? Достаточно задернуть шторы, и никто ничего не увидит.

Курихара: А, насчет этого. Действительно, когда люди хотят скрыть происходящее в доме от посторонних глаз, они задергивают шторы. Логично ожидать, что они сделают так и перед тем, как совершить убийство. Но никому и в голову не придет, что преступление может произойти в доме, где все окна открыты.

Автор: То есть это своего рода психологический трюк?

Курихара: Думаю, да. Взгляни на планировку еще раз. В этом доме огромное количество окон. Шестнадцать штук – я посчитал. Как будто владельцы сами хотели, чтобы прохожие и соседи заглядывали внутрь как можно чаще. Мне кажется, это была уловка, которая позволяла оставить в секрете существование комнат, о которых не следовало знать посторонним.

Первый этаж

вернуться

2

Около 130–200 тысяч рублей по курсу, актуальному на момент выхода книги в Японии.

3
{"b":"942392","o":1}