Литмир - Электронная Библиотека

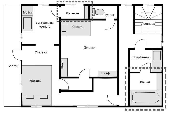
Действительно, на плане в стенах детской я не увидел ни одного значка, обозначающего окно.

Курихара: Обычно родители, наоборот, просят проектировщиков продумать планировку таким образом, чтобы в детскую попадало как можно больше солнечного света. А чтобы ребенку сделали комнату совсем без окон… Такого я еще никогда не видел.

Автор: Может, этому есть какое-то объяснение? Например, у ребенка кожное заболевание, и солнечный свет ему вреден.

Курихара: В таком случае окна достаточно просто занавесить. Совсем отказываться от них – это странно, даже ненормально.

Автор: Ясно.

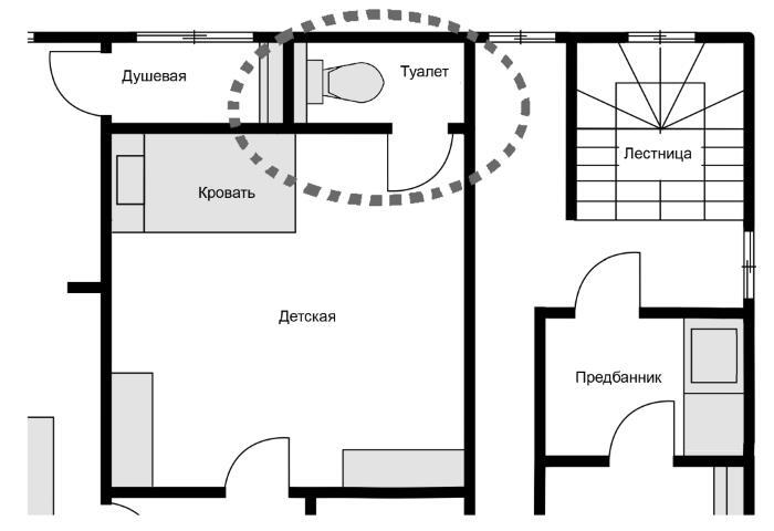
Курихара: К тому же в этой комнате есть еще одна непонятная деталь. Посмотри на туалет. Судя по расположению двери, в него можно попасть только из детской.

Автор: И правда. Получается, у ребенка был отдельный туалет?

Курихара: Похоже на то.

Странный дом - i_013.jpg

Автор: Комната без окон и с отдельным туалетом. А чтобы войти в нее, нужно пройти через коридор, по обеим концам которого установлены двери… Звучит как описание тюремной камеры.

Курихара: Да, даже для родителей, склонных к гиперопеке, это перебор. От планировки так и веет желанием полностью контролировать ребенка. Может быть, его даже держали в детской взаперти.

Автор: Значит, ребенок подвергался жестокому обращению…

Курихара: Не исключено. Скажу больше: по-моему, родители не хотели, чтобы их ребенка кто-то увидел. Взгляни еще раз на план второго этажа. Тебе не кажется, что все комнаты расположены так, чтобы скрыть наличие детской? К тому же в ней нет окон. Получается, увидеть ребенка с улицы было невозможно. Можно предположить, что родители держали его под замком и скрывали от окружающих сам факт его существования.

Второй этаж

Странный дом - i_014.jpg

Автор: Но зачем?

Курихара: Не знаю. Но судя по планировке, в этом доме творилось что-то ужасное.

Две ванные

Курихара: Кстати, рядом с детской расположена спальня…

Автор: Ты про комнату с двуспальной кроватью? Наверное, это спальня родителей, да?

Странный дом - i_015.jpg

Курихара: Да, скорее всего. Она просторная, в отличие от детской. И окон там много.

Мне вспомнились, как Янаока назвал этот дом «светлым и просторным».

Курихара: Но, честно говоря, в ней меня тоже кое-что смущает. В верхней части плана изображена душевая. Получается, умывальная комната играет роль предбанника[1], но при этом она полностью просматривается из спальни.

Автор: И правда, двери-то нет.

Курихара: Согласись, в этом мало приятного: раздеваться или выходить из душа, пока на тебя кто-то смотрит. Пусть даже муж или жена. Может, конечно, эти двое были настолько близки… Какая-то жуткая картина вырисовывается: родители не чают души друг в друге, но при этом держат собственного ребенка под замком. Хотя, может быть, я накручиваю.

Автор: Ну да… Ой, ого!

Курихара: Что такое?

Автор: Кроме душевой на втором этаже есть еще ванная комната. Это ведь тоже необычно?

Второй этаж

Странный дом - i_016.jpg

Курихара: Ну, не могу сказать, что это что-то из ряда вон, но такая планировка действительно встречается крайне редко. Кстати, в ванной тоже ни единого окна. Зато в душевой есть одно, почти во всю стену.

Автор: И правда. Выходит, все-таки этот дом какой-то жутковатый… Как ты считаешь, лучше его не покупать?

Курихара: Конечно, нельзя делать однозначные выводы на основе одной только планировки, но… На месте твоего знакомого я бы поискал другой вариант.

Я поблагодарил Курихару и положил трубку. А потом снова принялся разглядывать план и живо представил ребенка, заточенного в комнате без окон, в то время как родители безмятежно спят в своей кровати.

Второй этаж

Странный дом - i_017.jpg

Первый этаж

Странный дом - i_018.jpg

Затем я решил сравнить планы первого и второго этажей. Если смотреть только на первый этаж, то можно решить, что это совершенно обычный дом. Не считая, конечно, загадочного пустого пространства. Кстати о нем… Курихара предположил, что это просто дополнительное помещение для хранения, в которое не стали проделывать дверь. Но что, если он ошибся?

Тут у меня возникла одна догадка. Совершенно дурацкая. Повторяя про себя: «Да ничего это мне не даст», я наложил друг на друга планы первого и второго этажей. Удивительно, но в интересующем меня месте детали планов совпали идеально.

Простая случайность? Или…

Загадочное пустое пространство

Я снова позвонил Курихаре.

Автор: Прости, что опять тебя дергаю.

Курихара: Да ладно, ничего страшного. Что-то случилось?

Автор: Мне все-таки никак не дает покоя это пустое пространство. Я подумал, может, оно как-то связано с планировкой второго этажа?

Курихара: Вот как?

Автор: Поэтому я наложил друг на друга планы первого и второго этажей… и оказалось, что пустое пространство тянется ровно от угла детской к углу ванной. Как будто соединяет эти два помещения.

Курихара: Да, и правда.

Странный дом - i_019.jpg

Автор: И… Я, конечно, ничего в этом не понимаю и, возможно, скажу глупость, но мне пришло в голову вот что: вдруг пустое пространство на первом этаже – на самом деле тайный проход? Что, если в полу в детской и ванной расположены два лаза на первый этаж, которые «загадочное пространство» соединяет? По нему можно перемещаться из детской в ванную. Родители ведь скрывали наличие ребенка. Но чтобы попасть в ванную, ребенку приходилось бы проходить через коридор, где есть окна. Там его могли заметить с улицы. Поэтому и понадобился тайный проход, который ведет из детской прямо в ванную. А чтобы замаскировать его, в углу комнаты поставили шкаф. Вот такая мысль у меня появилась… Что думаешь?

Курихара: Хм… Ну, идея, конечно, интересная.

Автор: Что, это уже перебор?

Курихара: Не уверен, что родители стали бы придумывать такие ухищрения просто ради того, чтобы ребенок сходил в ванну незамеченным.

Автор: Да, действительно. Ты прав. Извини… Просто что-то вдруг в голову пришло… Забудь.

Только что я с жаром излагал свою теорию, но теперь почувствовал себя неловко. Действительно, мое воображение чересчур разыгралось. Я уже собирался закончить разговор, когда из трубки донеслось бормотание Курихары.

Курихара: Лаз… Погоди-ка. Если твое предположение верно, то эта комната…

Странный дом - i_020.jpg
Странный дом - i_021.jpg

Автор: Ты что-то понял?

вернуться

1

В традиционном японском доме ванная комната обычно разделяется на две зоны: предбанник, где нужно раздеться и оставить одежду перед водными процедурами, и собственно ванна или душевая. (Здесь и далее прим. пер.)

2
{"b":"942392","o":1}