Литмир - Электронная Библиотека

Укэцу

Странный дом

Tok. Фудосан-мистери. Расследования по чертежам

Странный дом - i_001.jpg

HENNA IE © Uketsu 2021

Russian translation rights arranged with ASUKA SHINSHA, INC. through Japan UNI Agency, Inc., Tokyo

Странный дом - i_002.jpg

Художественное оформление К. Гусарева

Иллюстрация на обложке ЕyeEmpty

Странный дом - i_003.jpg

© Бонадык Н.А., перевод на русский язык, 2024

© Издание на русском языке, оформление.

ООО «Издательство Эксмо», 2025

Перед вами план дома.

Странный дом - i_004.jpg

Заметили что-нибудь странное?

На первый взгляд это совершенно обычный дом. Но если рассмотреть планировку внимательнее, можно заметить много необычных, даже зловещих деталей. С каждой секундой тревога нарастает, и наконец из разрозненных мелочей складывается правда об этом доме.

Ужасающая, невероятная правда.

Странный дом - i_005.jpg

Глава 1

Странный дом

Вопрос от знакомого

Я писатель-фрилансер, в основном меня интересуют такие темы, как мистика и оккультизм. По работе мне часто приходится сталкиваться с историями о паранормальных явлениях или загадочных происшествиях. И очень часто в них фигурируют дома. «Со второго этажа доносятся звуки шагов, хотя там никого нет…», «Сижу один в гостиной, но чувствую, что за мной кто-то наблюдает…», «В пустом шкафу переговариваются несколько голосов…» – каких только страшилок о домах с призраками я не слышал.

Но тот дом был не похож на другие.

* * *

В сентябре 2019 года мне позвонил знакомый по фамилии Янаока, сказал, хочет со мной посоветоваться. Янаока работает менеджером по продажам в одном издательстве, благодаря чему мы и познакомились с ним несколько лет назад. С тех пор мы поддерживаем связь, иногда встречаемся, чтобы вместе пообедать.

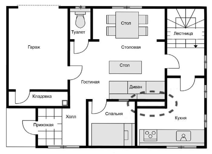
Янаока ждал рождения ребенка, поэтому решил, что им с женой пора обзавестись собственным домом. Он каждый день допоздна пропадал на сайтах агентств недвижимости, пока наконец ему на глаза не попался идеальный вариант: двухэтажный дом в тихом зеленом районе в черте Токио, расположенный недалеко от железнодорожной станции. До этого там уже кто-то жил, но сам дом был практически новым, его построили всего несколько лет назад. Янаока с женой съездили на осмотр и остались в полном восторге: дом оказался очень светлым и просторным. Однако в его планировке была одна странная деталь.

На первом этаже, между кухней и гостиной, находилось загадочное пустое пространство. В него не вела никакая дверь, поэтому попасть внутрь было невозможно. И в агентстве недвижимости тоже не смогли объяснить, зачем оно нужно. Не то чтобы это пространство могло как-то мешать в быту, но само его наличие не давало Янаоке покоя. В итоге он начал сомневаться, покупать ли ему вообще этот дом.

Первый этаж

Странный дом - i_006.jpg

Он решил посоветоваться именно со мной, видимо, потому, что я часто имею дело со сверхъестественным. «Загадочное пустое пространство…» Это и правда звучало таинственно, так что мне стало любопытно. Но я совершенно не разбираюсь в архитектуре и мало что могу понять, глядя на планировку дома.

Поэтому я решил обратиться за помощью.

Курихара

У меня есть знакомый по фамилии Курихара: он работает проектировщиком в крупном архитектурном бюро. А еще он большой фанат мистики и хорроров. Если кто-то и мог помочь мне разобраться с тайной этого дома, то только он.

Я пересказал Курихаре историю Янаоки, и он, кажется, заинтересовался, поэтому я отправил ему на почту планировку дома, а затем позвонил, чтобы узнать, что он обо всем этом думает.

Далее идет запись нашего с Курихарой разговора.

Автор: Курихара, привет! Спасибо, что нашел для меня время.

Курихара: Да ладно. По поводу твоего плана…

Автор: Ты смог понять, зачем нужно это пустое пространство, в которое невозможно попасть?

Странный дом - i_007.jpg

Курихара: Нет. Единственное, что я могу сказать с полной уверенностью, – оно появилось не в результате ошибки проектировщиков.

Автор: Точно?

Курихара: Да, это понятно из плана: со стороны кухни построили две дополнительные стены. Без них «загадочное пространство» не возникло бы, а сама кухня была бы просторнее. Если ради дополнительных стен пожертвовали площадью кухни, значит, пустое пространство было необходимо.

Автор: Ясно. Зачем же оно могло понадобиться?

Курихара: Вероятно, там планировали дополнительное помещение для хранения. Например, если установить двери со стороны гостиной, получится кладовка. А если расположить их со стороны кухни, внутри можно установить большой сервант. Наверное, в процессе строительства хозяева передумали, или им не хватило денег. Так или иначе, они отказались от идеи установить двери.

Странный дом - i_008.jpg
Странный дом - i_009.jpg

Автор: Понятно. А планировку менять было уже поздно, поэтому они просто оставили пустое пространство как есть, так получается?

Курихара: Да, это самое логичное объяснение.

Автор: Значит, ни к каким оккультным практикам оно отношения не имеет.

Курихара: Получается, так. Однако…

Неожиданно я уловил в голосе Курихары напряжение.

Курихара: Для кого строили этот дом?

Автор: Для прошлых владельцев: семейной пары с маленьким ребенком. Всего три человека.

Курихара: Маленьким? Сколько примерно лет?

Автор: Таких подробностей я не знаю… А что, что-то не так?

Второй этаж

Странный дом - i_010.jpg
Странный дом - i_011.jpg

Курихара: Честно говоря, как только я увидел план, то сразу подумал, что этот дом какой-то странный.

Автор: Вот как? Тебя смутило что-то еще, кроме загадочного пространства?

Курихара: Да, планировка второго этажа. Взгляни на детскую. Ничего не замечаешь?

Автор: Хм-м-м… Что, две двери?.. В детскую ведет коридор, и с обоих его концов установлено по двери.

Курихара: Верно. И расположен он тоже странно. Допустим, ты поднялся на второй этаж. Чтобы попасть в детскую, тебе придется сделать крюк и обойти пол-этажа. Ужасно неудобно, тебе не кажется?

Автор: И правда.

Курихара: А еще в этой комнате нет ни одного окна.

Странный дом - i_012.jpg
1
{"b":"942392","o":1}