Литмир - Электронная Библиотека
Содержание  
A
A

Предположим все-таки, что Хэйтаро убил Хэйкити после того, как натурщица покинула мастерскую. И опять нестыковка. Хэйкити принял снотворное. Хэйтаро мог прийти к нему, чтобы обсудить покупку его картин или что-то в этом роде. Тогда получается, что Хэйкити выпил таблетки на глазах у сына Ясуэ, с которым у него таких уж близких отношений не было.

Или Хэйтаро, перед тем как убить Хэйкити, угрозами заставил его проглотить снотворное? Цель понятна: убедить полицию, что Хэйкити посетил близкий приятель или друг. Но как в таком случае он один сумел провернуть трюк с запертой мастерской? Мы должны объяснить это, рассматривая версию, что преступником был Хэйтаро.

– Угу. Чем дальше в лес, тем больше дров. Хэйтаро занимался торговлей картинами. А что, если он задумал подписать с Хэйкити контракт на те самые двенадцать картин, которые сам художник называл делом всей жизни, а затем убить его? Ведь это действительно стоящие вещи, если за одну картину можно было купить целый дом?

– Ты прав. Хотя у Хэйкити есть всего одиннадцать работ – да-да, тех самых, – которые можно назвать большими. Я имею в виду, в физическом смысле, размер холстов. Кроме них, его картины в основном небольшого формата. Много этюдов, связанных тематикой с главными работами. Остальное – балерины в стиле Дега. Почти все эти работы взяла в свою галерею Ясуэ, но особой ценности они не представляли.

– Угу.

– Вот такие дела. Если убийство Кадзуэ и преступления против семьи Умэдзава совершило одно и то же лицо, то перед нами предстает образ человека импульсивного и слабовольного. Ничего общего с хладнокровной и интеллектуальной личностью, которую мы себе представляем. Это просто идиот, выставивший напоказ свою группу крови и пол!

– Хм-м…

– Если с Хэйтаро как обладателя группы крови 0 по вышеуказанным причинам снимаются подозрения в убийстве Кадзуэ, то же самое можно утверждать и в отношении убийства Хэйкити – Хэйтаро не мог доехать по снегу от «Медичи» до дома Умэдзавы за сорок минут.

А если мы снимаем подозрения с Хэйтаро, неизбежно встает вопрос о том, что все эти преступления совершил не известный нам человек, не входивший в круг семейства Умэдзава. Конечно, это наполовину лишает интригу остроты, но ведь мы не ради развлечения занимаемся этим делом.

– Да-да.

– Я думаю – вернее, хочу думать, – что убийство Кадзуэ никоим образом не связано с другими убийствами. Это чистая случайность.

– И ты не считаешь, что в доме Кадзуэ находилась мастерская, где создавалась Азот?

– Хм-м… Я не могу представить, чтобы преступник, задумавший совершить серию убийств, убил еще и Кадзуэ, чтобы завладеть ее домом для выполнения своего плана.

Хотя картина вырисовывается очень живописная. В заброшенном доме, где произошло убийство, безумный художник во мраке ночи работает над своим творением. Прямо как в фантастическом романе! Но давай посмотрим на это с практической точки зрения. Во мраке ночи чем-нибудь заниматься невозможно. Нужно хотя бы свечи зажечь. Тут соседи непременно заметили бы свет, и пошли бы разговоры.

Полиция тут же зашевелилась бы. Полицейских, если б они явились, конечно, можно было отшить: мол, дом мой, и если есть вопросы, приходите с ордером. Но я на его месте подобрал бы другой дом, про который никто ничего не знает. В доме Кадзуэ невозможно было спокойно работать. Невозможно по-настоящему оценить свое творение. Требовалось более уединенное место.

– Согласен, – проговорил Митараи. – Однако многие все еще считают, что Азот была создана в том самом доме. Верно?

– Да, они думают, что преступник убил Кадзуэ, чтобы устроить у нее мастерскую.

– Но если у убийцы была группа крови 0 и это не Хэйтаро, значит, мы неизбежно склоняемся к версии о чужаке.

– Совершенно верно. Вот мы и подошли к узловому моменту.

– Как я понимаю, убийство Кадзуэ осталось нераскрытым?

– Точно.

– Почему же полиция не смогла найти грабителя?

– Таких случаев сколько угодно. Предположим, мы с тобой сейчас поедем на Хоккайдо, убьем там одинокую старушку и украдем деньги, которые она хранила под полом. Весьма вероятно, что полиция нас не найдет, потому что нас с этой старушкой ничто не связывает. Очень много преступлений такого рода не раскрывается.

С другой стороны, когда речь идет о предумышленных убийствах, у преступника обязательно есть четкий мотив. Если мотив удается определить, дело, как правило, рано или поздно раскрывают. Обязательно устанавливают алиби замешанных в нем лиц.

Но с убийствами в семействе Умэдзава проблема как раз и заключается в мотивах, вернее, в их отсутствии. В «убийствах Азот» мотива нет ни у кого, кроме Хэйкити Умэдзавы, которого самого убили.

– М-м…

– Но мне совсем не хочется думать о чужаке. Если это сотворил человек, о котором никто ничего раньше не слышал, все напряжение теряется.

– Значит, ты считаешь, что убийство Кадзуэ – чистая случайность?.. Понятно. И все-таки опиши мне место происшествия.

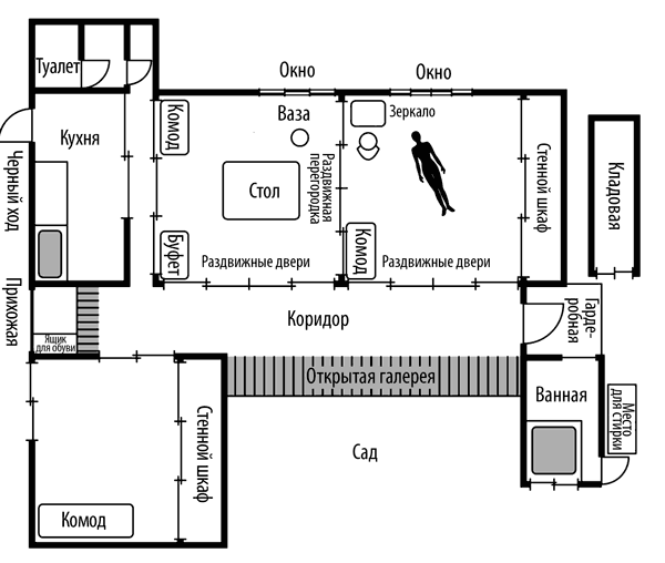
– Хорошо. Вот книга, вот схема. Добавить к ней особо нечего. Самое обычное дело. Кадзуэ нашли на полу. Она была одета в кимоно, но без нижнего белья. Следов борьбы на одежде не обнаружено.

Цикл "Детектив Киёси Митараи. Книги 1-8" (СИ) - i_004.png

– Интересно.

– Ничего удивительного. В те времена многие женщины ходили без белья. Ящики из шкафов были выдвинуты, содержимое разбросано по дому. Деньги исчезли. В комнате, где лежала Кадзуэ, стояло трюмо, но его преступник не тронул. Створки были аккуратно сложены, на подставке для зеркала никаких следов. Ваза, послужившая орудием убийства, валялась на татами в соседней комнате за раздвижной перегородкой.

Тело Кадзуэ лежало, как показано на рисунке, хотя, возможно, преступник перетащил ее в комнату уже после того, как ударил по голове. Рана на голове глубокая, удар был сильный, но крови на этом месте почему-то не обнаружили. Убийца мог перетащить свою жертву туда, где ему было удобнее ее насиловать. Странно, что полиция не сумела установить, где преступник нанес Кадзуэ смертельный удар.

– Погоди. Ты говоришь, он ее изнасиловал, когда она уже была мертва?

– Ну да.

– Это точно?

– Очень похоже, что так и было.

– Что-то здесь не вяжется. Ты только что сказал, что одежда Кадзуэ была в порядке. Если мы имеем дело со случайным ограблением и преступником, действующим настолько легкомысленно, что он даже не пытается скрыть свою группу крови и пол, неужели он, надругавшись над женщиной, будет приводить в порядок ее одежду?

– М-да… Пожалуй…

– Ну хорошо. Продолжай.

– Хм-м… Странно, что полиция не установила, где Кадзуэ получила смертельный удар по голове. Вряд ли убийство произошло вне дома. Это маловероятно. Хотя есть люди, серьезно рассматривающие такую возможность. Споры идут до сих пор. В принципе, конечно, все может быть, но я не вижу оснований для такой точки зрения. Осматривая место преступления, полиция обнаружила на зеркале трюмо следы крови. Ее стирали очень тщательно, но до конца так и не стерли. Как выяснилось, кровь принадлежала Кадзуэ.

– То есть ее убили, когда она сидела перед зеркалом и красилась?

– Не похоже. Косметики на ней почти не было. Скорее, она причесывалась, когда преступник напал на нее.

– Она была повернута лицом к зеркалу?

– Да, лицом.

– Интересно! Тогда я опять не понимаю. Дом был одноэтажный?

– Да.

– Судя по рисунку, сбоку от трюмо была раздвижная перегородка. Если Кадзуэ сидела лицом к зеркалу, прямо за спиной у нее была еще одна перегородка, отделявшая комнату от коридора. Грабитель мог проникнуть в комнату, где находилась Кадзуэ, либо из соседней комнаты, отодвинув перегородку, либо из-за спины женщины, из коридора. Других путей у него не было.

Предположим, преступник вошел в комнату из коридора. Кадзуэ увидела бы его в зеркале трюмо. И продолжала спокойно сидеть, дожидаясь, пока он ее ударит? Это невозможно. Она непременно вскочила бы и бросилась бежать.

16
{"b":"940968","o":1}