Литмир - Электронная Библиотека
A
A

Тренер периодически меняет амплуа игроков.

Время игры: 15 мин.

Выигрывает команда, забившая больше мячей.

Формирование основ индивидуального технико-тактического мастерства юных футболистов - petuhov_100.png
Рис. 12

Упражнение 7(два двора)

Применяется с возраста 8-9 лет до ГСС со ступенчатым усложнением правил.

Цель: развитие внимания и мышления, обучение выполнению коротких и средних передач.

Сопряженное воздействие: обучение групповым взаимодействиям (с 14-15 лет эта задача становится основной).

Возраст 8-9 лет(рис. 13).

Задача: забить мяч в ворота соперника.

Содержание. Участвуют две команды по 6-7 игроков (вратарь, 3 защитника, 2-3 нападающих). Игра проводится 2 мячами. Игроки играют только в своих зонах. Защитник, сделавший точную передачу своим нападающим, имеет право подключиться в атаку. При срыве атаки защитник обязан быстро вернуться в свою зону.

Время игры: 20 мин.

Выигрывает команда, забившая больше мячей.

Формирование основ индивидуального технико-тактического мастерства юных футболистов - petuhov_101.png
Рис. 13

Возраст 9-10 лет.

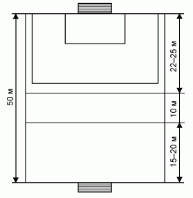
Правила и условия проведения упражнения те же. Три защитника противостоят двум нападающим (трое против трех). Размеры поля 50x25-30 м.

Возраст 10-11 лет.

Правила и условия проведения упражнения те же. Состав команды – 8 игроков. Оборона получает численное преимущество и играет четверо против трех. Вводится средняя зона (от 3 до 6 м), где игра не ведется.

Возраст 11-12 лет(рис. 14).

Правила и условия проведения упражнения те же. В средней зоне игра ведется один на один без активного сопротивления (разрешен перехват). При получении мяча игроком средней зоны, ему дается не более 3-х с на принятие решения, в противном случае мяч передается другой команде. В крайних зонах игра проводится с численным преимуществом обороны четверо против двух.

Формирование основ индивидуального технико-тактического мастерства юных футболистов - petuhov_102.png
Рис. 14

Возраст от 12-13 и до ТСС(рис. 15).

Формирование основ индивидуального технико-тактического мастерства юных футболистов - petuhov_103.png
Рис. 15

Правила и условия проведения упражнения те же. Оборона должна не более, чем в три передачи доставить мяч игроку средней зоны или в зону атаки. Ширина зон – стандартная штрафная площадь. Четверо основных защитников и вратарь защищают стандартные ворота.

Упражнение 8(три двора).

Применяется с возраста 10-11 лет до ГСС со ступенчатым усложнением правил.

Цель: развитие внимания и мышления, обучение выполнению коротких и средних передач.

Сопряженное воздействие: обучение групповым взаимодействиям (с 14-15 лет эта задача становится основной).

Возраст 10-11 лет(рис. 16).

Задача: забить мяч в ворота (5x2 м) соперника.

Содержание. Игровое поле разделено на 3 зоны. Игра проводится 2 мячами. Участвуют две команды по 8 игроков: вратарь, 3 защитника, 2 полузащитника и 2 нападающих, играющие в своих зонах. Один из нападающих имеет право отходить в среднюю зону, один из полузащитников играть в зоне атаки. Игрок, сделавший точную передачу своим партнерам в другую зону, имеет право подключиться в эту зону. При срыве атаки игрок обязан быстро вернуться в свою зону.

Время игры: 20 мин.

Выигрывает команда, забившая больше мячей.

Формирование основ индивидуального технико-тактического мастерства юных футболистов - petuhov_104.png
Рис. 16

Возраст 11-12 лет.

Условия и правила упражнения те же. Численный состав 9 игроков: вратарь, 4 защитника, 2 полузащитника и 2 нападающих.

Возраст 12-13 лет и до ГС С.

Условия и правила упражнения те же. Один полузащитник имеет право отходить в зону обороны, один нападающий – играть в средней зоне. Схема расположения и размер площадки аналогичны предыдущему упражнению (рис. 15).

Упражнение 9(четыре двора)

Применяется с возраста 11-12 лет до ГСС со ступенчатым усложнением правил.

Цель: развитие внимания и мышления, обучение выполнению коротких и средних передач.

Сопряженное воздействие: обучение групповым взаимодействиям (с 14-15 лет эта задача становится основной).

Возраст 11-12 и 12-13 лет(рис. 17).

Задача: забить мяч в ворота (5x2 м) соперника.

Формирование основ индивидуального технико-тактического мастерства юных футболистов - petuhov_105.png
Рис. 17

Содержание. Игровое поле разделено на 4 зоны. Игра проводится 2 мячами. Участвуют две команды по 9 игроков: вратарь, 3 защитника, 2 опорных, 1 атакующий полузащитник и 2 нападающих, играющие в своих зонах. Один из опорных полузащитников имеет право отходить в зону обороны, атакующий полузащитник – играть в зоне атаки. Игрок, сделавший точную передачу своим партнерам в другую зону, имеет право подключиться в эту зону. При срыве атаки игрок обязан быстро вернуться в свою зону.

Время игры: 20 мин.

Выигрывает команда, забившая больше мячей.

Для возраста 13-14 лет и старше.

Игровую площадку целесообразно размещать согласно упражнению 7 (рис. 15). Усложнения заданий: ограничение количества передач в зоне обороны; ограничение времени на организацию передачи в зону атаки; увеличение количества опорных полузащитников; обязательное использование в атаке определенных групповых взаимодействий и т.д.

Упражнение 10

Применяется с возраста 9-10 лет до ГСС со ступенчатым усложнением правил.

Цель: развитие внимания и мышления, восприятия, обучение выполнению коротких и средних передач.

Сопряженное воздействие: обучение групповым взаимодействиям (с 14-15 лет эта задача становится основной).

Возраст 9-11 лет(рис. 18).

Формирование основ индивидуального технико-тактического мастерства юных футболистов - petuhov_106.png
Рис. 18

Задача: забить мяч в ворота соперника.

Содержание. Игровое поле разделено на 2 игровые площадки и зону нейтрального игрока. Игра проводится 2 мячами, по мере роста квалификации – 3. Участвуют две команды по 10-12 игроков. Каждая команда разделена на две группы по 5-6 человек: вратарь, 3 защитника и 2 нападающих, играющие в своих зонах. Игроки одной команды имеют право передавать мяч друг другу, находясь на разных площадках. Игра на каждой площадке ведется по правилам упражнения «два двора». Ворота 3x2 м при игре с вратарями (без вратарей – двое малых ворот или ворота 3x2 м, лежащие на боковых штангах).

Время игры: 20 мин.

Выигрывает команда, забившая больше мячей.

Упражнение 11 (игра в шесть ворот)

Применяется с 9-10 лет до ГСС со ступенчатым усложнением правил.

Цель: развитие внимания и мышления, восприятия, обучение выполнению коротких и средних передач.

Сопряженное воздействие: обучение групповым взаимодействиям (с 14-15 лет эта задача становится основной).

Возраст 9-10 лет(рис. 19).

Формирование основ индивидуального технико-тактического мастерства юных футболистов - petuhov_107.png
Рис. 19

Задача: забить мяч в ворота соперника.

Содержание. Игра проводится 2 мячами. Участвуют две команды по 10-12 игроков, каждая команда защищает ворота 3x2 м и двое малых ворот. Разделение на защитников и нападающих отсутствует, ТТД не регламентируются. Игра проводится по правилам футбола. Тренер периодически дает два свистка. Это означает, что атаковать можно только малые ворота. Такая мера предусматривает быструю смену направления атаки. После длинного свистка атаку можно проводить в любые ворота.

Время игры: 20 мин.

Выигрывает команда, забившая больше мячей.

27
{"b":"34724","o":1}