Литмир - Электронная Библиотека
A
A

В заключении по проекту говорилось:

«1. Представленный эскизный проект 122-мм гаубичной самоходной установки 122-СГ на базе шасси трофейного самохода „Артштурм“ одобрить и принять для разработки технического проекта и изготовления опытного образца с внесением изменений согласно замечаний.

2. Просить наркомат вооружения об определении производственной базы для производства перевооружения трофейных самоходных установок „Артштурм“ отечественными 122-мм гаубицами М-30 обр. 1938 г.

3. Просить распоряжения начальника ГАБТУ КА о срочном восстановлении двух машин „Артштурм“ и передаче их заводам НКВ».

Для изготовления опытного образца самоходки, получившей обозначение СГ-122, нарком вооружения Д. Устинов 24 апреля 1942 года подписал приказ № 217с, которым предписывалось организовать на заводе № 592 НКВ (Мытищи Московской области) специальное конструкторское бюро для работ по новым машинам. Чтобы обеспечить сборку опытных СГ-122 начальник ГАБТУ КА генерал-лейтенант Я. Федоренко отдал распоряжение об организации ремонта трофейных «артштурмов» на рембазе № 82 в Москве.

Трофейные танки Красной Армии. На «тиграх» на Берлин! - i_076.jpg

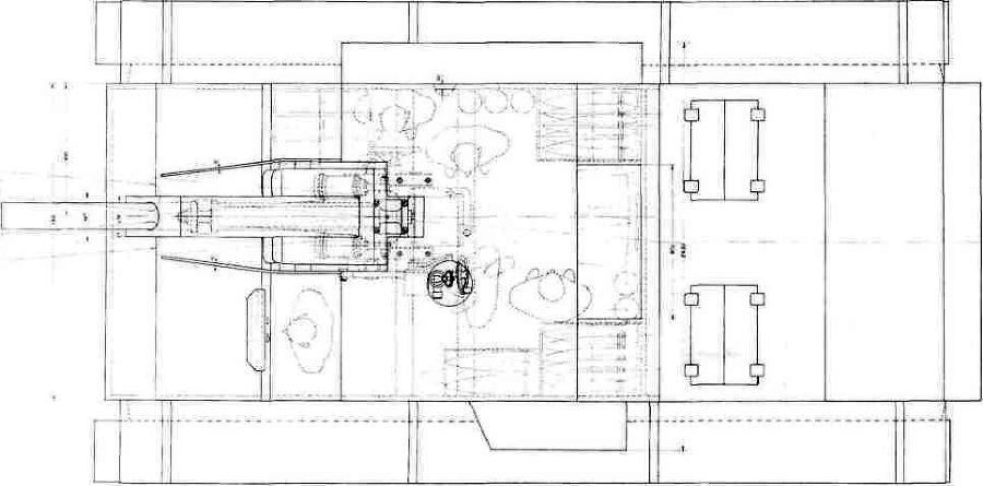
Эскизные проработки самоходной гаубицы СГ-122, продольный разрез по боевому отделению. Апрель 1942 года (копия заводского чертежа).

13 апреля 1942 года председатель техсовета НКВ Э. Сатель направил начальнику ремонтного управления ГАБТУ КА бригадинженеру Сосенкову следующий документ:

«Секретно.

В соответствии с решением, принятым Зам. Наркома Обороны СССР генерал-лейтенантом танковых войск т. Федоренко о перевооружении трофейных „артштурмов“ 122-мм гаубицами обр. 1938 года на заводе № 592 прошу Вас дать необходимое распоряжение о ремонте и доставке на завод № 592 четырех трофейных „артштурмов“. Для ускорения всех работ первый отремонтированный „артштурм“ необходимо доставить на завод до 25 апреля».

Здесь следует сказать, что большая часть оборудования и рабочих завода № 592 в подмосковных Мытищах (до войны Мытищинский вагоностроительный завод, ныне — Мытишинский машиностроительный завод) ещё в октябре-ноябре 1941 года была эвакуирована. К февралю 1942 года на предприятии насчитывалось всего около 2000 рабочих и 278 станков, из которых 107 требовали капитального ремонта. Основной продукцией завода на тот момент было производство корпусов ручных гранат, авиабомб, литье опорных плит для 82-мм миномётов и постройка зенитных бронепоездов.

Трофейные танки Красной Армии. На «тиграх» на Берлин! - i_077.jpg

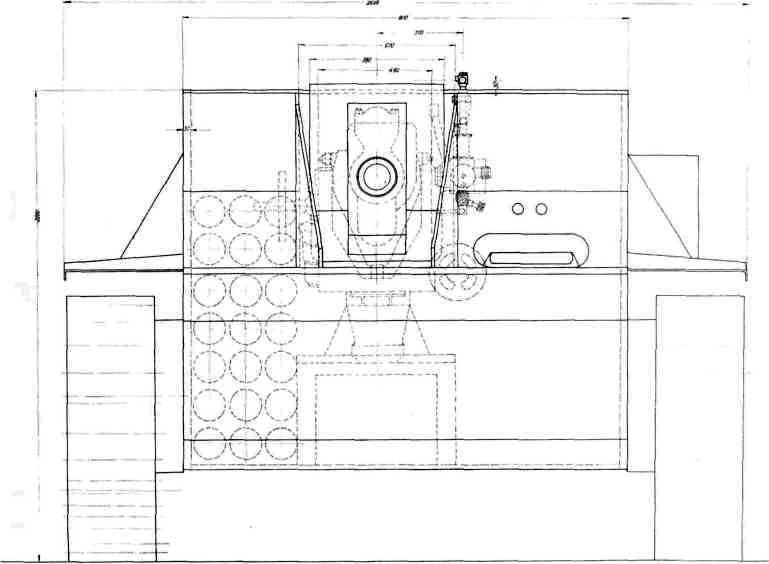
Эскизные проработки самоходной гаубицы СГ-122, вид спереди. Апрель 1942 года (копия заводского чертежа).

В кратчайшие сроки созданное на заводе № 592 конструкторское бюро, которой возглавил инженер Каштанов, разработало на основе эскизного проекта рабочие чертежи, и в середине июня 1942 года был готов опытный образец СГ-122 (кстати, аналогичный проект перевооружения 122-мм гаубицей М-30 завод № 592 разработал и для танка Т-34, такую машину изготовили здесь осенью 1942 года).

На боевой рубке штурмового орудия (с демонтированной крышей) наваривалась простая призматическая коробка из 45-мм (лоб) и 35–25-мм (борта и корма) броневых листов. Лобовые листы базового StuG III усиливались дополнительными 20-мм экранами. Внутри боевого отделения на месте станка 75-мм орудия StuK 37 был смонтирован новый станок для гаубицы М-30. Сама же 122-мм гаубица использовалась практически без изменений, лишь для достижения достаточной устойчивости качающейся части в уравновешивающий механизм добавили по одной специальной пружине в каждую его колонну. Кроме того, для обеспечения выхода объектива панорамы прицела над крышей боевого отделения, между коробкой прицела и его корзиной установили специальную втулку.

Самоходка позволяла вести стрельбу как с места, так и с хода, осуществляя быстрый перенос огня на другие цели разворотом на гусеницах и вести приблизительное прицеливание с помощью простейшего визирного приспособления у водителя (в виде двух пластинок).

Возимый боекомплект (50 выстрелов) размещался следующим образом. Снаряды (по одному, два или три) укладывались на специальные металлические полки, закрепленные вдоль задней стенки и бортов боевого отделения. Верхний ряд снарядов фиксировался в своих опорах брезентовыми ремнями, а нижние прижимались полками, установленными сверху. По мере использования снарядов полки откидывались вверх, удерживаясь в таком положении пружинами.

Гильзы с зарядами устанавливались на полу боевого отделения в специальные пазы, и фиксировались закраинами своих фланцев. От выпадения они удерживались специальной пластинчатой пружиной, которая утапливалась вниз при выдвижении гильзы из паза. В походном положении гильзы дополнительно закреплялись ремнями с пряжками. Отмечалось, что размещение боезапаса в самоходке удобное, что «способствует повышению скорострельности». Для облегчения заряжания гаубицы на цапфенной обойме закрепили специальные лотки для досылки снарядов.

Трофейные танки Красной Армии. На «тиграх» на Берлин! - i_078.jpg

Эскизные проработки самоходной гаубицы СГ-122, вид в плане. Апрель 1942 года (копия заводского чертежа).

Экипаж СГ-122 состоял из пяти человек: механика-водителя, командира, он же наводчик по горизонтали (располагался за механиком-водителем левым боком вперед), позади него так же боком по ходу машины располагался первый заряжающий, напротив командира правым плечом по ходу машины располагался наводчик по вертикали (гаубица М-30 имела раздельную наводку), а за ним также правым плечом вперед стоял второй заряжающий.

Для входа-выхода экипажа в машине имелось два люка. Основной размешался в корме рубки, а резервный находился перед наводчиком по вертикали.

Для того, чтобы защитить экипаж от пороховых газов при интенсивной стрельбе использовались противогазные маски, «соединенные шлангами двойной длины с забортным свежим воздухом, минуя противогазные коробки (к которым шланги присоединяются только в момент химтревоги». Если огонь велся с закрытых позиций, для вентиляции использовались открытые люки.

В установке имелось место для монтажа радиостанции 9-Р «Тапир» и ТПУ-4бис. Обязанности радиста должен был выполнять «малозагруженный номер расчета — вертикальный наводчик».

Отмечалось, что перевооружение «артштурмов» может быть осуществлено на заводе «при подготовленных деталях и нарезанной броне (из трофейных или разбитых танков) в течение 10–12 дней». По первоначальным прикидкам перевооружение не должно было требовать большой затраты станко-часов, так как «все детали простые и в большинстве выполняются огнерезкой и электросваркой».

В период с 20 по 30 июня 1942 года опытный образец СГ-122 прошел заводские испытания (на полигоне завода № 8 под Москвой). На них проверялись общая прочность конструкции и отдельных её узлов, удобство обслуживания самоходки, а также скорострельность, устойчивость при стрельбе и ходовые качества.

В ходе испытаний выяснилось, что время перехода самоходки из походного положения в боевое составляет от 19 до 27с, а время переноса огня по азимуту на углы 15, 45 и 90 градусов, разворотом машины на месте с грубым наведением орудия на новую цель при помощи визира с последующей точной наводкой по панораме и производством выстрела — от 16 до 22 с.

Проверка удобства работы орудийного расчета в противогазах при сильном задымлении боевого отделения показала, что это заметно не снижает работоспособности орудийного расчета. Задымление осуществлялось сжиганием в течение 15 минут в трех пустых гильзах, установленных на полу боевого отделения, промасленной ветоши «с накоплением дыма периодическим задраиванием люков». В это время экипаж находился в противогазах, соединенных удлиненными шлангами с наружным воздухом и «производил боевые действия при гаубице».

17
{"b":"167979","o":1}